Dieses Objekt ist bereits vermietet!

Plauen - 4,5 Zimmer Maisonettewohnung mit Dachterrasse + Balkon-Echtholzparkett-2 Bäder-zur Miete in Plauen

Besonderheiten

Kabel TV
Abstellraum
Dusche
Wanne

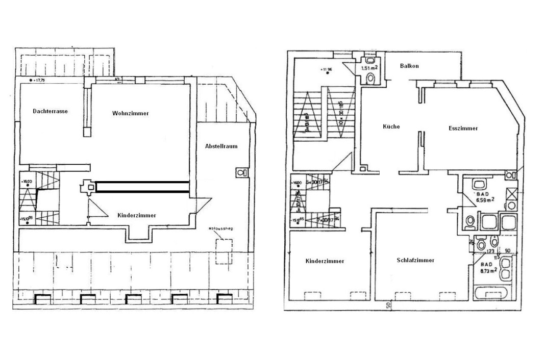
Ausstattung

FußbödenParkettfußböden im Flur, Wohnzimmer / restliche Räume Laminatfußboden / Fußbodenfliesen im Badezimmer und Küche
Badezimmer1x Bad mit Fenster, Badewanne, Dusche und Doppelwaschplatz ausgestattet
1x Bad ohne Fenster und mit Dusche ausgestattet / Stellmöglichkeit für eine Waschmaschine ist gegeben
Küchegroßzügige Küche mit Zugang zum Esszimmer oder Arbeitszimmer
Austrittegroßzügiger Balkon an Küche vorhanden
Dachterrasse vom Wohnzimmer aus begehbar
NebengelassKeller zur Wohnung / Abstellraum in der Wohnung
Pkw Stellplatzöffentliche Verkehrsflächen vor dem Haus (Teilbereiche mit Anwohnerparkausweis) / Außenstellplatz optional für 35,00 Euro je Monat möglich
  • Besonderheiten:
Stadtzentrumslage – ruhige Hausgemeinschaft – Gasetagenheizung vorhanden
Anzahl seperater WCs1
DSL-Geschwindigkeit50 Mbps

Objekthinweise

Achtung
  • Hundehaltung als Einzelfallentscheidung, bitte vor Besichtigung abklären ob dies durch den Eigentümer gestattet wird
  • Wohnung wird mittels Gasetagenheizung (Brennwerttherme Baujahr 2013) beheizt.
Der hierfür notwendige monatliche Abschlag (ca. 400,00 Euro) für Heizung und Warmwasser muss separat an den jeweiligen Gasversorger entrichtet werden und ist nicht in der Mietzahlung enthalten.
Hausmeister
  • es findet im Objekt eine wöchentliche Treppenhausreinigung durch den derzeitig bestellten Hausmeisterdienst statt

Dieses Objekt ist bereits vermietet!

Nutzen Sie unsereImmobiliensuche um ein verfügbares Angebot zu finden.


zur Immobiliensuche