Dieses Objekt ist bereits vermietet!

Plauen - Altbauwohnung mit offener Küche am Seehaus

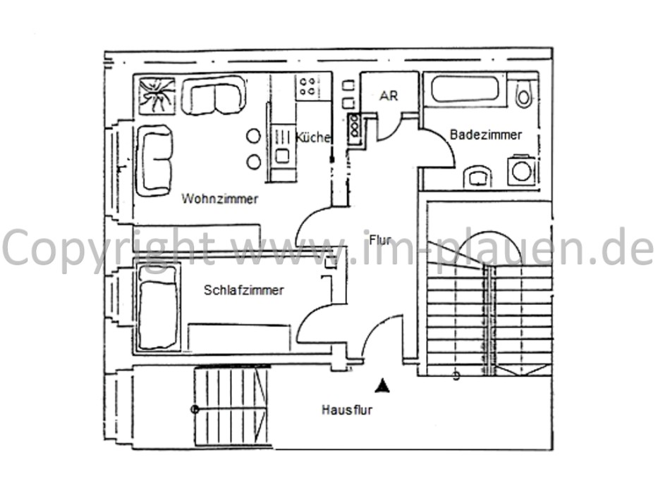
Besonderheiten

Kabel TV
Abstellraum
Gartennutzung
offener Wohn-, Küchenbereich
Wanne

Ausstattung

FußbödenLaminatfußboden im gesamten Wohnraum verlegt / Fußbodenfliesen im Küchenbereich im Badezimmer
Badezimmermit Fenster und Badewanne ausgestattet / Stellmöglichkeit für eine Waschmaschine ist gegeben
Kücheoffener Küchenbereich im Wohnzimmer
AustritteKein Balkon
NebengelassKeller zur Wohnung / Abstellraum innerhalb der Wohnung
Pkw Stellplatzöffentliche Verkehrsflächen vor dem Haus / Freiparkplatz auf dem Grundstück der AWG (20EUR p.M.) möglich
MedienDSL Anschluss in der Wohnung (übliche Bandbreitenversorgung durch Telekom ca. 16000 DSL) / Kabelfernsehen über Pyur möglich
BesonderheitenNahe Stadtzentrum / Einkaufsmöglichkeiten und Straßenbahnhaltestelle in unmittelbarer Nähe

Objekthinweise

Achtung
  • Hundehaltung als Einzelfallentscheidung, bitte vor Besichtigung abklären ob dies durch den Eigentümer gestattet wird
Hausmeister
  • es findet im Objekt eine wöchentliche Treppenhausreinigung durch den derzeitig bestellten Hausmeisterdienst statt

Dieses Objekt ist bereits vermietet!

Nutzen Sie unsereImmobiliensuche um ein verfügbares Angebot zu finden.


zur Immobiliensuche