Dieses Objekt ist bereits verkauft!

Plauen - 3 Zimmer Dachgeschoss in Plauen - vermietete Eigentumswohnung mit Balkon

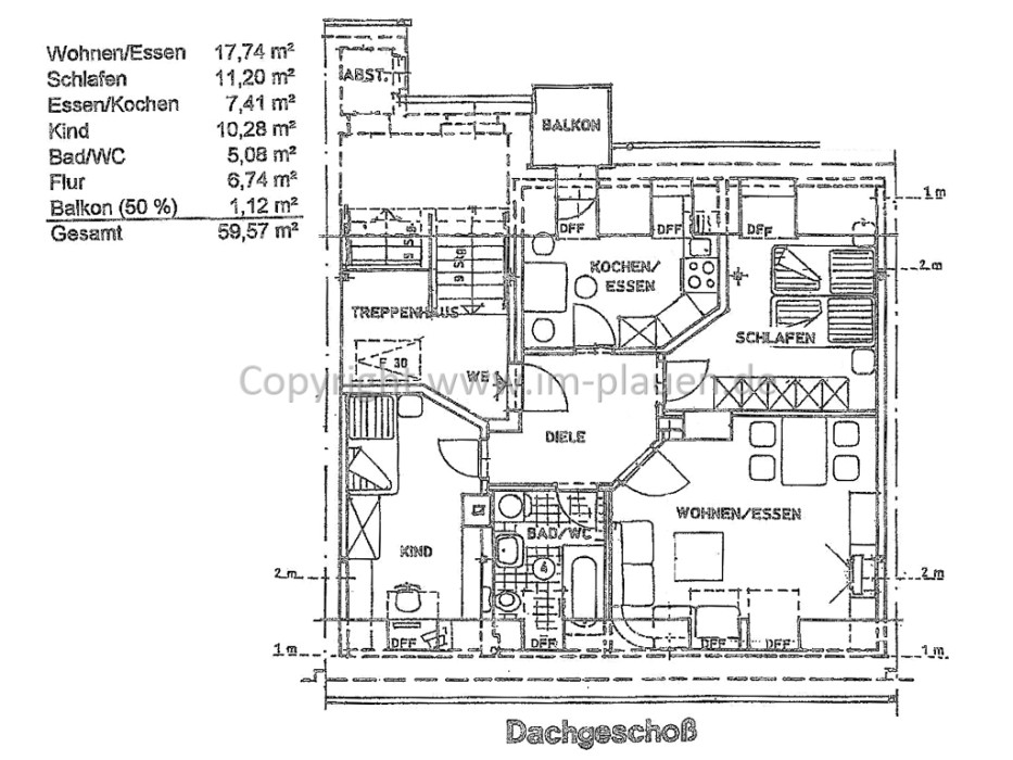
Besonderheiten

Kabel TV
Abstellraum
Wanne

Ausstattung

FußbödenTeppichfußboden im gesamten Wohnraum verlegt / Fußbodenfliesen im Badezimmer / PVC Belag in der Küche
Badezimmermit Fenster und Badewanne ausgestattet / Stellplatz für eine Waschmaschine ist gegeben
Küchegroßzügige Küche mit Essplatzmöglichkeit und Zugang zum Balkon
AustritteBalkon an der Küche vorhanden
Aufzugnicht vorhanden
NebengelassKellerabteil zur Wohnung / Abstellraum im Treppenhaus
Pkw Stellplatzöffentliche Verkehrsflächen vor dem Haus
Medien
  • DSL Anschluss in der Wohnung (übliche Bandbreitenversorgung durch Telekom ca. 16000 DSL) / Kabelfernsehen über Pyur möglich
Besonderheiten
  • keine

Objekthinweise

Beschreibungmonatliche Mieteinnahmen (Stand September 2019):
  • vermietet: seit 01.10.2018
255,00 Euro Kaltmiete
+120,00 Euro Nebenkosten
375,00 Euro Warmmiete

monatliche Hausgeldzahlungen
  • 174,16 Euro (lt. Wirtschaftsplan 2019)
  • 222,730/1.000 Miteigentumsanteile

Sie erwerben im Kaufpreis einen WEG-Rücklagenanteil zur Wohnung in Höhe von 2.500,60 Euro (Stand aus Jahresabrechnung 2018 zum 31.12.2018)

mehr Detail entnehmen Sie bitte dem beiliegendem PDF Verkaufsexposé

Dieses Objekt ist bereits verkauft!

Nutzen Sie unsereImmobiliensuche um ein verfügbares Angebot zu finden.


zur Immobiliensuche