Weihnachtspause & Jahreswechsel

Wir gönnen uns eine kurze Weihnachtspause. In dieser Zeit sind wir nicht erreichbar.

 

✨ Wir wünschen frohe Weihnachten, entspannte Feiertage und einen guten Start ins neue Jahr! ✨

 

Ab dem 05.01.2026 sind wir wieder erreichbar.


Das Team von Immobilienmarkt Plauen

Dieses Objekt ist bereits vermietet!

Plauen - Aufzug - rollstuhlgerecht - Parkett - Gäste WC - 4 Zimmerwohnung Seehaus in Plauen zur Miete

Besonderheiten

Kabel TV
Abstellraum
Dachboden
Rollstuhlgerecht
Dusche
Wanne
Personenaufzug

Ausstattung

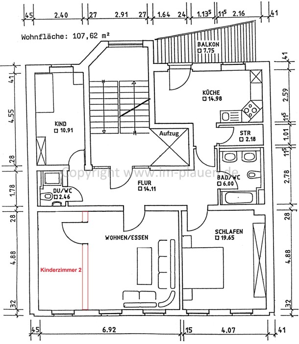
Fußbödenhochwertiger Parkettfußboden im Wohn-, Schlafräumen und Flur verlegt.
Badezimmerohne Fenster und mit Badewanne ausgestattet / Doppelwaschbecken / Waschmaschinenstellplatz im gemeinsamen Waschkeller / Gäste Bad mit WC und Dusche
Küchegroßzügige Küche mit Linoleumbelag ausgestattet
AustritteBalkon ca. 7,75 m² an Küche
Aufzugvorhanden
NebengelassKeller zur Wohnung / Abstellraum in der Küche / Dachbodenanteil zur Wohnung gehörend
Pkw Stellplatzöffentliche Verkehrsflächen vor dem Haus
MedienDSL Anschluss in der Wohnung (übliche Bandbreitenversorgung durch Telekom ca. 16000 DSL) / Kabelfernsehen über Pyur möglich
Besonderheitenweise Moralinnentüren mit Jugendstilgläser
Anzahl seperater WCs2
DSL-Geschwindigkeit50 Mbps

Objekthinweise

Achtung
  • Hundehaltung ist durch die Eigentümer nicht gestattet
Hausmeister
  • es findet im Objekt eine wöchentliche Treppenhausreinigung durch den derzeitig bestellten Hausmeisterdienst statt
Heizkosten im Zuge der aktuellen Energie-, Gaspreiserhöhungen
  • die im Vermietungsexposé ausgewiesenen Nebenkosten beinhalten die bisherig für das Objekt üblichen Nebenkostenvorauszahlungen. Bei Abschluss des Mietvertrages empfehlen wir hierzu eine Verdoppelung der ausgewiesenen Nebenkosten vorzunehmen. Aktuell können wir als Maklerbüro nicht abschätzen, welche individuellen Gasverträge die einzelnen Objekteigentümer abgeschlossen haben
Beschreibung
  • Die Nebenkostenvorauszahlung kann durch die aktuelle Energiepolitik nicht entsprechend kalkuliert werden.

  • durch die großzügige Raumaufteilung und der barrierefreien Bewegung in der Wohnung, wäre dies auch für Rollstuhlfahrer geeignet. Einzige Überwindung sind die fünf Treppenstufen vom Hauseingang bis zum Fahrstuhl im Objekt.

Dieses Objekt ist bereits vermietet!

Nutzen Sie unsereImmobiliensuche um ein verfügbares Angebot zu finden.


zur Immobiliensuche