| Fußböden | hochwertiger Parkettfußboden im gesamten Wohnraum / weise Moralinnentüren mit Jugendstilgläser / Fußbodenfliesen im Badezimmer / Küche mit PVC- Belag |
| Badezimmer | ohne Fenster und mit Badewanne ausgestattet / Doppelwaschtisch / Stellmöglichkeit für eine Waschmaschine ist im Waschkeller gegeben |
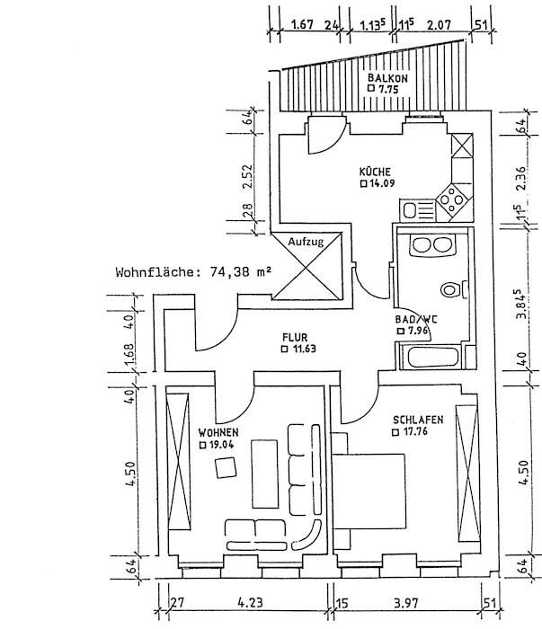
| Küche | großzügige Küche mit Zugang zum Balkon |
| Austritte | Balkon ca. 7,75 m² - Zugang über Küche |
| Aufzug | vorhanden - Zugang zum Fahrstuhl über 5 Treppenstufen |
| Nebengelass | Keller zur Wohnung / Dachbodenanteil zur Wohnung / Trockenraum im Haus |
| Pkw Stellplatz | öffentliche Verkehrsflächen vor dem Haus |
| Medien | DSL Anschluss in der Wohnung (übliche Bandbreitenversorgung durch Telekom ca. 50.000Mbits DSL - über Stadtwerke Strom Plauen bis zu 100.000Mbits) / Kabelfernsehen über Pyur möglich |
| Besonderheiten | Parkettfußboden |
| DSL-Geschwindigkeit | 50 Mbps |
| Achtung |
|
| Hausmeister |
|
| Beschreibung | Durch die großzügige Raumaufteilung und der barrierefreien Bewegung in der Wohnung, wäre dies auch für Rollstuhlfahrer geeignet. Einzige Überwindung sind die fünf Treppenstufen vom Hauseingang bis zum Fahrstuhl im Objekt. |
| Denkmalschutz | denkmalgeschützt, kein Energiepass notwendig |
| Baujahr | 1907 |
| Letzte Modernisierung | 2000 |
| Energiepass nach | Verbrauch |
| Energieverbrauchswert | 91,00 kWh/m²a |
| Warmwasser enthalten | Ja |
| Primärenergie | Gas |
| gültig bis | 03.12.2018 |
| Heizungsart | Zentralheizung |

| Zimmer | 2 |
| Wohnfläche | 74.38 m² |
| Etagenlage | Hochparterre |
| Balkon/Terrassenfläche | 7.75 m² |
| Anzahl Balkone | 1 |
| Badezimmer | 1 |
| Kelleranteil | Ja |
| verfügbar ab | sofort |
| Kaltmiete | 395,00 € |
| Nebenkosten | 185,00 € |
| Warmmiete | 580,00 € |
| Kaution | 1.185,00 € |
| Objektnummer | V196-3 |
| Straße | Moritzstraße 68 |
| PLZ/Ort | 08523 Plauen |
| Stadtgebiet | Seehaus |

Bitte teilen Sie uns in Ihrer Anfrage gewünschte Termine mit, damit wir einen Besichtigungstermin koordinieren können.