| Fußböden | Vinylboden im Wohnzimmer und Kinderzimmer / PVC- Belag im Flur und Schlafzimmer / Fußbodenfliesen im Badezimmer und Küche |
| Badezimmer | ohne Fenster und mit Badewanne ausgestattet / Deckeneinbauleuchten / Handtuchheizkörper / Stellmöglichkeit für eine Waschmaschine ist gegeben |
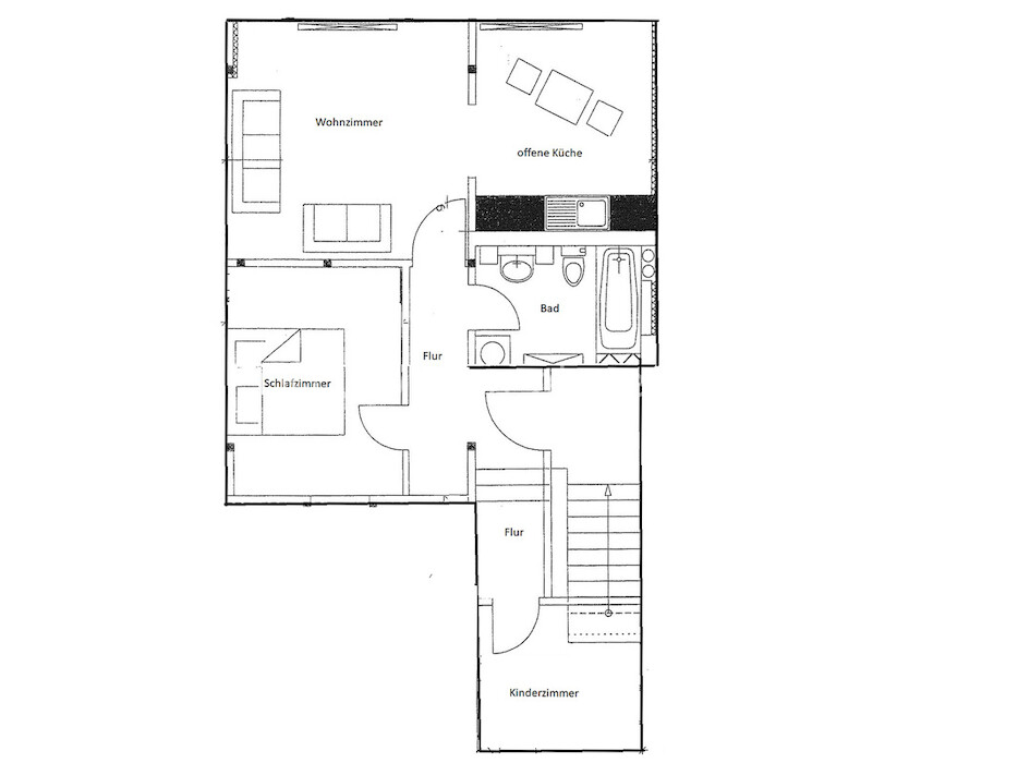
| Küche | großzügige, offener Küchenbereich im Wohnzimmer |
| Austritte | keine Austritte vorhanden |
| Aufzug | nicht vorhanden |
| Nebengelass | Keller zur Wohnung / Abstellraum im Treppenhaus / Trockenraum im Haus |
| Pkw Stellplatz | öffentliche Verkehrsflächen vor dem Haus |
| Medien | Glasfaseranschluss in der Wohnung über Stadtwerke Strom Plauen bis zu 1.000 Mbits / SAT- TV über Gemeinschaftsantenne |
| Besonderheiten | das im Wohnungsgrundriss ausgewiesene Kinderzimmer ist aufgrund seiner Größe eher als Arbeits-, Gästezimmer nutzbar |
| DSL-Geschwindigkeit | 1000 Mbps |
| Achtung |
|
| Hausmeister |
|
| Beschreibung | Moderne 3-Zimmer-Dachgeschosswohnung mit offener Wohnküche und Glasfaser-Internet. Diese 3-Raum-Wohnung in der Schrödelstraße 17 in Plauen (Stadtteil Alt Chrieschwitz) bietet auf ca. 60,80 m² eine moderne, offene Wohnküche, hochwertige Ausstattung und eine Top-Internetverbindung mit Glasfaser-DSL (bis zu 1.000 Mbit/s). Dank der Gemeinschafts-SAT-Anlage profitieren Sie von einer stabilen Fernsehversorgung ohne zusätzliche Kosten. Diese moderne Wohnung bietet beste digitale Infrastruktur, eine offene Wohnküche und flexible Nutzungsmöglichkeiten – jetzt Besichtigungstermin vereinbaren! |
| Baujahr | 1906 |
| Letzte Modernisierung | 2022 |
| Energiepass nach | Verbrauch |
| Wertklasse | E |
| Energieverbrauchswert | 156,00 kWh/m²a |
| Warmwasser enthalten | Ja |
| Primärenergie | Gas |
| gültig bis | 13.03.2029 |
| Heizungsart | Zentralheizung |
| Denkmalschutz | Nein |

| Zimmer | 3 |
| Wohnfläche | 60.8 m² |
| Etagenanzahl | 3 |
| Etagenlage | Dachgeschoss |
| Badezimmer | 1 |
| verfügbar ab | sofort |
| Kaltmiete | 275,00 € |
| Nebenkosten | 160,00 € |
| Warmmiete | 435,00 € |
| Kaution | 687,50 € |
| Objektnummer | V1213-2 |
| Straße | Schrödelstraße 17 |
| PLZ/Ort | 08529 Plauen |
| Stadtgebiet | Alt Chrieschwitz |

Bitte teilen Sie uns in Ihrer Anfrage gewünschte Termine mit, damit wir einen Besichtigungstermin koordinieren können.