| Fußböden | Laminatfußboden im gesamten Wohnraum und Badezimmer |
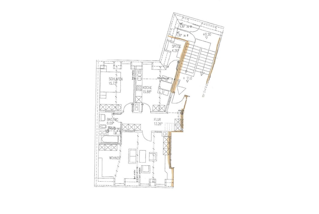
| Badezimmer | ohne Fenster und mit Badewanne ausgestattet / Stellmöglichkeit für eine Waschmaschine ist gegeben |
| Küche | mit Abstellraum |
| Austritte | kein Austritt vorhanden |
| Aufzug | nicht vorhanden |
| Nebengelass | Keller zur Wohnung / Abstellraum in der Wohnung / Trockenraum im Haus |
| Pkw Stellplatz | öffentliche Verkehrsflächen vor dem Haus |
| Medien | DSL: Telekom, Vodafone, 1&1 bis zu 16 Mbit/s / Kabel: Vodafone Kabel, PYUR bis zu 1 Gbit/s / Glasfaser: Stadtwerke Strom Plauen, Telekom bis zu 1 Gbit/s |
| Besonderheiten | keine weiteren Besonderheiten |
| DSL-Geschwindigkeit | 50 Mbps |
| Achtung |
|
| Hausmeister |
|
| Beschreibung | Willkommen in Ihrer neuen Wohnung im charmanten Stadtteil Neundorf in Plauen! Diese frisch renovierte 2-Raum-Wohnung befindet sich im Dachgeschoss (3. OG) der Kasernenstraße 1 und bietet mit rund 80?m² großzügig geschnittenen Wohnraum in ruhiger, dennoch zentraler Lage. Die Wohnung überzeugt durch einen durchdachten Grundriss mit einem großen Wohnzimmer, einem Schlafzimmer, separater Küche mit Abstellraum sowie einem innenliegenden Badezimmer mit Badewanne. |
| Letzte Modernisierung | 1995 |
| Warmwasser enthalten | Nein |
| Heizungsart | Zentralheizung |
| Energieträger | Gas |
| Denkmalschutz | Nein |
| Zimmer | 2 |
| Wohnfläche | 80 m² |
| Etagenanzahl | 3 |
| Etagenlage | Dachgeschoss |
| Badezimmer | 1 |
| Kelleranteil | Ja |
| verfügbar ab | sofort |
| Kaltmiete | 400,00 € |
| Nebenkosten | 190,00 € |
| Warmmiete | 590,00 € |
| Kaution | 860,00 € |
| Anzahl Stellplätze | 1 |
| Außenstellplatz | 1 |
| Freiplatz Miete | 30,00 € |
| Objektnummer | V1301 |
| Straße | Kasernenstraße 1 |
| PLZ/Ort | 08523 Plauen |
| Stadtgebiet | Westend |

Bitte teilen Sie uns in Ihrer Anfrage gewünschte Termine mit, damit wir einen Besichtigungstermin koordinieren können.