Weihnachtspause & Jahreswechsel

Wir gönnen uns eine kurze Weihnachtspause. In dieser Zeit sind wir nicht erreichbar.

 

✨ Wir wünschen frohe Weihnachten, entspannte Feiertage und einen guten Start ins neue Jahr! ✨

 

Ab dem 05.01.2026 sind wir wieder erreichbar.


Das Team von Immobilienmarkt Plauen

Dieses Objekt ist bereits vermietet!

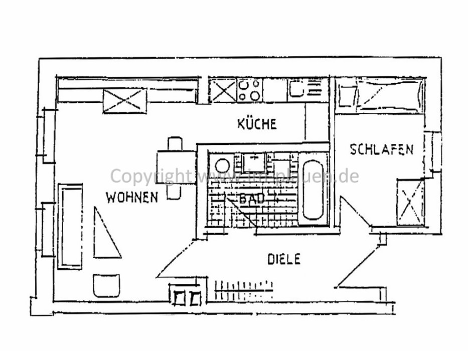
Plauen - Singlewohnung am Schlossberg mit kleinem Schlafzimmer + Einbauküche + Bad mit Badewanne

Besonderheiten

SAT TV
offener Wohn-, Küchenbereich
Wanne

Ausstattung

FußbödenLaminatfußboden im Flur, Wohnzimmer und dem kleinen Schlafzimmer verlegt / Fußbodenfliesen im Badezimmer / PVC Belag in Küche
Badezimmerohne Fenster und mit Badewanne ausgestattet / Stellmöglichkeit für eine Waschmaschine ist gegeben
Kücheohne Fenster und mit Einbauküche ausgestattet (Zugang über das Wohnzimmer)
AustritteKEIN Balkon
AufzugNICHT vorhanden
NebengelassKellerabteil zur Wohnung
Pkw Stellplatzöffentliche Verkehrsflächen vor dem Objekt (Teilflächen mit Anwohnerparkausweis - Kosten ca. 31,00 Euro pro Jahr)
BesonderheitenEinbauküche – Stadtzentrum - kleines Schlafzimmer (max. ca. 160cm x 200cm Bettmöglichkeit)

Objekthinweise

Achtung
  • Hundehaltung als Einzelfallentscheidung, bitte vor Besichtigung abklären ob dies durch den Eigentümer gestattet wird
Hausmeister
  • es findet im Objekt eine wöchentliche Treppenhausreinigung durch den derzeitig bestellten Hausmeisterdienst statt

Dieses Objekt ist bereits vermietet!

Nutzen Sie unsereImmobiliensuche um ein verfügbares Angebot zu finden.


zur Immobiliensuche